The GP

Raleigh

2025/26

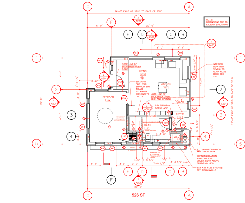
It started with an inquiry about an ADU and quickly moved to the common ground of Moto GP motorcycle races. The owners were looking for a home for their aging parents. Something that captured the northern light and the beautiful views on a steep and wooded hill. Construction starting now.